Home Interior
Элегантный, сбалансированный интерьер, в котором смешались классические мотивы и уют загородного дома


ИТОГОВАЯ СТОИМОСТЬ ПРОЕКТА:
41 400 000 ₽ (1.4 млн - проектирование интерьера)
НЕБРОСКАЯ
РОСКОШЬ
О ПОМЕЩЕНИИ

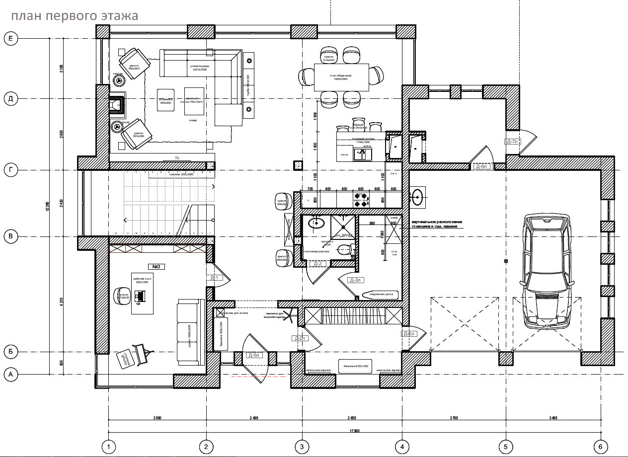
В качестве исходной базы для проектирования нам достался двухэтажный дом в процессе постройки (400 кв.м.).
Пространства в нем были неплохо сбалансированы, с точки зрения перепланировки серьезных вопросов не стояло. Архитектурный проект практически не претерпел изменений.

ПОДКЛЮЧЕНИЕ ДИЗАЙНЕРА

Основной сложностью в данном проекте был поиск стилистики пространств, воплощающей пожелания заказчиков о современном и универсальном интерьере.
Несмотря на достаточно скромную площадь жилых помещений первого этажа - 200 кв.м., нам удалось разместить 7 функциональных зон, сохранив ощущение простора и воздуха. Этого мы добились благодаря использованию глянцевого керамогранита под дерево и минимального количества дверей, благодаря этому приему пространство визуально удвоилось не только по площади пола, но и по высоте потолков.

Благодаря удачной планировке приватная зона кухни не просматривается от входа в дом.
Галерея
Кухня, столовая и гостиная - это единое пространство, в котором вся семья может находиться вместе и наслаждаться семейной атмосферой.
ЛУЧШИЕ ПОЗИЦИИ
Особое
ИТОГ: ПОЛНЫЙ ЦИКЛ ДО РЕЛИЗА
Этот объект, к сожалению, не был реализован.
Заказчик не верно информировал бюро о возможностях его бюджета. На этапе завершения дизайн-проекта отказался от реализации, ознакомившись со сметой. Заказчик дорабатывал интерьер самостоятельно совместно с прорабом строительной бригады.
Мы были бы рады реализовать проект именно для Вас.